北区龍田6丁目2号地建売
北区龍田6丁目2号地建売
3,698万円
TATEURI of URBAN HOME
中央区出水5丁目1号地建売
価格3,898万円




























所在地
熊本市中央区出水5丁目273の1の一部
交通
「出水3丁目」バス停徒歩約11分
販売価格
3,898万(土地+建物)
返済シミュレーション:3,898万借り入れ、西日本シティ銀行変動金利1.25% 50年返済の場合 月々87,402円
校区
出水南小学校/出水中学校
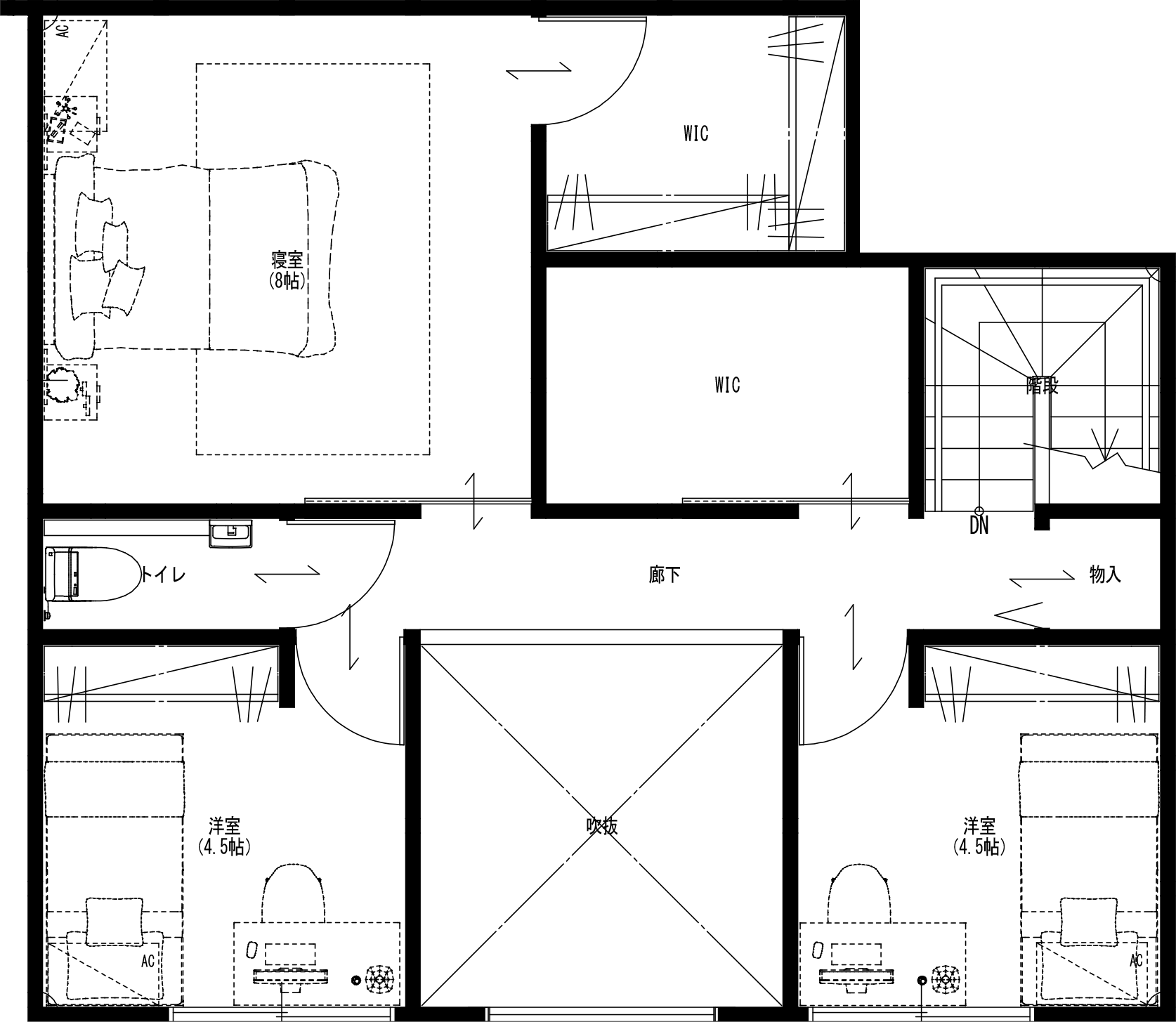
延床面積
1F:52.99㎡
2F:48.02㎡
合計:101.01㎡(31.68坪)
敷地面積
112.50㎡(34.03坪)
竣工
2025年10月
設計施工
自社
地目
宅地
用途地域
第2種中高層住居専用地域
建ぺい率
70% (角地緩和)
容積率
200%
都市計画
市街化区域
接道
北側公道約4mに接面約10.52m
構造・階数
木造・2階建て
取引形態
売主
引き渡し
相談
仲介手数料
不要
備考
建築確認番号第202503510号
現況:完成済み
広告有効期限/2026年6月30日
不動産許可番号 国土交通大臣(1)第010009号
建設業許可番号 熊本県知事許可(特-3)第17117号
連絡先
建売事業部 TEL 096-284-1750
この物件の見学を予約
2026年6月
※当日のご予約は、お電話でお願いいたします。
OTHER ESTATE
北区龍田6丁目2号地建売
3,698万円
鶴羽田Ⅱ-7号地建売
2,798万円
北区清水新地1号地建売
3,298万円
東区長嶺東5丁目Ⅲ建売
3,898万円
東区小峯1丁目1号地建売
4,198万円
中央区出水5丁目2号地建売
3,798万円
南区元三町1丁目新築戸建て
3,198万円
北区武蔵ヶ丘1丁目1号地建売
4,398万円
北区武蔵ヶ丘1丁目2号地建売
4,298万円
合志市栄新築戸建て
3,198万円
ABOUT URBAN HOME
暮らしの豊かさを。
あなただけの物語を。

※1/熊本県北地域(荒尾・玉名地区)実績
※2026年1月1日現在の内容となります。
家を建てることは、これからの人生の景色を決めること。 アーバンホームは、土地が持つ表情や、そこに流れる風、そして何より「どう暮らしたいか、どう生きたいか」という想いに、真っ向から向き合います。注文住宅から規格住宅まで、形は違えど根底にあるのは、住み始めてから「心地いい」とふと感じる瞬間へのこだわり。営業、設計士や建築家たちが、資金計画から細かな間取りの検討まで、一歩先を行く視点であなたの理想を編み上げていきます。
家を建てることは、これからの人生の景色を決めること。 アーバンホームは、土地が持つ表情や、そこに流れる風、そして何より「どう暮らしたいか、どう生きたいか」という想いに、真っ向から向き合います。注文住宅から規格住宅まで、形は違えど根底にあるのは、住み始めてから「心地いい」とふと感じる瞬間へのこだわり。営業、設計士や建築家たちが、資金計画から細かな間取りの検討まで、一歩先を行く視点であなたの理想を編み上げていきます。私たちが追求するのは、無駄のないデザインの美しさ、日々の機能性、そして無理なく手に届く価格。この3つが美しく調和してこそ、本当の「理想の家」と言えるから。 土地の仕入れから建築工程まで、知恵を絞り、工夫を凝らす。 すべては、あなたの夢を「憧れ」のまま終わらせないために。アーバンホームは、時を経るほどに愛着が深まる、世界にひとつだけの「ベストな居場所」を誠実に、丁寧につくり続けています。

私たちが追求するのは、無駄のないデザインの美しさ、日々の機能性、そして無理なく手に届く価格。この3つが美しく調和してこそ、本当の「理想の家」と言えるから。 土地の仕入れから建築工程まで、知恵を絞り、工夫を凝らす。 すべては、あなたの夢を「憧れ」のまま終わらせないために。アーバンホームは、時を経るほどに愛着が深まる、世界にひとつだけの「ベストな居場所」を誠実に、丁寧につくり続けています。
WHY CUSTOMERS
LOVE URBAN HOME





TRUST


FINANCIAL PLANNING




CONTACT