三養基郡みやき町原古賀3号地建売
三養基郡みやき町原古賀3号地建売
3,198万円
TATEURI of URBAN HOME
三養基郡みやき町原古賀4号地建売
価格3,098万円















所在地
佐賀県みやき町大字原
交通
JR長崎本線 中原駅まで徒歩約12分
販売価格
3,098万(土地+建物)
返済シミュレーション:3,098万借り入れ、西日本シティ銀行変動金利1.25% 50年返済の場合 月々69,464円
校区
中原小学校/中原中学校
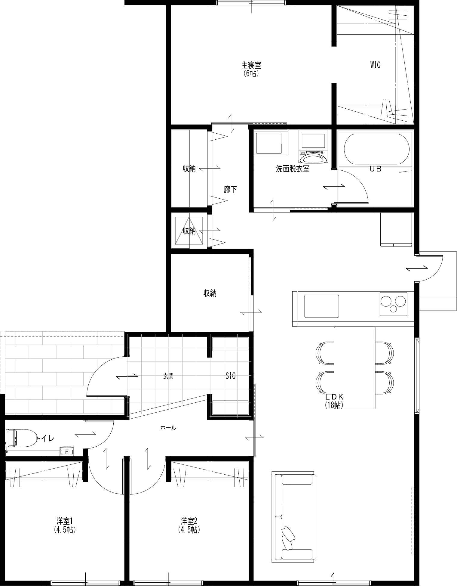
延床面積
1F:84.46㎡ 合計84.46㎡(25.54坪)
敷地面積
237.51㎡(71.84坪)
竣工
2026年2月新築
設計施工
自社
地目
宅地
用途地域
指定なし
建ぺい率
60%
容積率
200%
都市計画
非線引区域
接道
西側公道約6mに接面約15.3.m
北側公道約6mに接面約12.9m
構造・階数
木造・平屋建て
取引形態
売主
引き渡し
相談
仲介手数料
不要
備考
建築確認番号第12501530号
現況:2026年2月新築予定
広告有効期限/2026年6月30日
不動産許可番号 国土交通大臣(1)第010009号
建設業許可番号 熊本県知事許可(特-3)第17117号
連絡先
建売事業部 TEL 096-284-1750
この物件の見学を予約
2026年6月
※当日のご予約は、お電話でお願いいたします。
OTHER ESTATE
ABOUT URBAN HOME
暮らしの豊かさを。
あなただけの物語を。

※1/熊本県北地域(荒尾・玉名地区)実績
※2026年1月1日現在の内容となります。
家を建てることは、これからの人生の景色を決めること。 アーバンホームは、土地が持つ表情や、そこに流れる風、そして何より「どう暮らしたいか、どう生きたいか」という想いに、真っ向から向き合います。注文住宅から規格住宅まで、形は違えど根底にあるのは、住み始めてから「心地いい」とふと感じる瞬間へのこだわり。営業、設計士や建築家たちが、資金計画から細かな間取りの検討まで、一歩先を行く視点であなたの理想を編み上げていきます。
家を建てることは、これからの人生の景色を決めること。 アーバンホームは、土地が持つ表情や、そこに流れる風、そして何より「どう暮らしたいか、どう生きたいか」という想いに、真っ向から向き合います。注文住宅から規格住宅まで、形は違えど根底にあるのは、住み始めてから「心地いい」とふと感じる瞬間へのこだわり。営業、設計士や建築家たちが、資金計画から細かな間取りの検討まで、一歩先を行く視点であなたの理想を編み上げていきます。私たちが追求するのは、無駄のないデザインの美しさ、日々の機能性、そして無理なく手に届く価格。この3つが美しく調和してこそ、本当の「理想の家」と言えるから。 土地の仕入れから建築工程まで、知恵を絞り、工夫を凝らす。 すべては、あなたの夢を「憧れ」のまま終わらせないために。アーバンホームは、時を経るほどに愛着が深まる、世界にひとつだけの「ベストな居場所」を誠実に、丁寧につくり続けています。

私たちが追求するのは、無駄のないデザインの美しさ、日々の機能性、そして無理なく手に届く価格。この3つが美しく調和してこそ、本当の「理想の家」と言えるから。 土地の仕入れから建築工程まで、知恵を絞り、工夫を凝らす。 すべては、あなたの夢を「憧れ」のまま終わらせないために。アーバンホームは、時を経るほどに愛着が深まる、世界にひとつだけの「ベストな居場所」を誠実に、丁寧につくり続けています。
WHY CUSTOMERS
LOVE URBAN HOME





TRUST


FINANCIAL PLANNING




CONTACT