ひとつ屋根の、やさしい光景。

- 熊本北部エリア
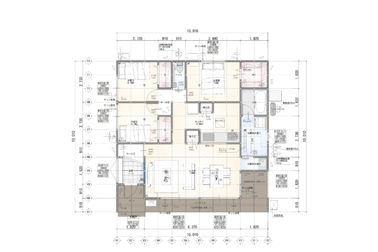
荒尾市本井手分譲地(アーバンライクタウン)30号地建売
《こだわりポイント》
●閑静な住宅街で落ち着いた住環境
●小中学校が徒歩10分圏内の安心立地
●スーパーやコンビニが近く生活便利
●車での移動もスムーズな好アクセス
| POINT | 小学校、中学校それぞれ徒歩約10圏内とお子様のご通学に安心。 閑静な住宅街ながら、車で数分の場所にスーパーやコンビニなどがあり、好アクセスで利便性の良い立地です。 |
所在地 | 熊本県荒尾市本井手1480番54,1605番61 | 交通 | JR鹿児島本線 荒尾駅 車で約10分 |
|---|---|---|---|
| 校区 | 緑ヶ丘小学校/荒尾第三中学校 | 延床面積 | 86.12㎡(26.05坪) |
| 敷地面積 | 213.92㎡(64.71坪) | 竣工 | 2025年8月種中旬予定 |
| 設計 | 自社 | 施工 | 自社 |
| 販売価格 | 2,898万(土地+建物)
返済シミュレーション:2,898万借り入れ、西日本シティ銀行変動金利1% 50年返済の場合 月々61,396円 |
||
| 地目 | 宅地 | 用途地域 | 第2種住居地域 |
|---|---|---|---|
| 建ぺい率 | 60% | 容積率 | 200% |
| 都市計画 | 区域外 | 接道 | 西側幅員6.0m 接面13.6m 位置指定あり |
| 構造・階数 | 木造・2階建て | 取引形態 | 売主 |
| 築年数 | 2025年8月新築予定 | 引き渡し | 2025年11月上旬予定 |
| 仲介手数料 | 不要 | 設備 | オール電化 |
| 備考 | 建築確認番号第202423960号 広告有効期限/2025年12月31日 不動産許可番号 国土交通大臣(1)第010009号 建設業許可番号 熊本県知事許可(特-3)第17117号 |
||
| お問合せ先 | アーバンホーム玉名店 TEL 0968-74-3033 | ||







