家族の“今”と“これから”にちょうどいい家。

- 熊本南部エリア
宇土市高柳町2期4号地建売
《こだわりポイント》
-
生活利便施設が近くに揃う新規分譲地
-
子育て世帯に人気の宇土小学校エリア
-
シンプルで格好いいデザインの外観
-
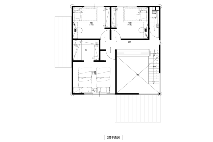
吹き抜けのある明るく開放的なLDK
-
続き間で使える広々とした畳コーナー
-
2階廊下にカウンター付きスタディスペース
-
各寝室にゆとりを持たせたプライベート空間
| POINT | 近くにドラッグストアなどがある便利な新規分譲地内の建売です。 人気の宇土小学校エリア。シンプルで格好いい外観です。吹き抜けのLDKで明るく、続き間の畳コーナーもあるため、広々としています。 2階には、廊下にカウンターを設置し、スタディスペースとしても活用できるようにしました。 またそれぞれの寝室も十分な広さでプライベート空間も確保してあります。 |
所在地 | 宇土市高柳町字鎌田74番22 | 交通 | 踏切バス停 徒歩約5分 |
|---|---|---|---|
| 校区 | 宇土小学校/鶴城中学校 | 延床面積 | 1F:61.27㎡ 2F:43.47㎡ 合計:104.74㎡(31.68 坪) |
| 敷地面積 | 181.85㎡(55.00坪) | 竣工 | 2026年4月新築予定 |
| 設計 | 自社 | 施工 | 自社 |
| 販売価格 | 3,098万(土地+建物)
返済シミュレーション:3,098万借り入れ、西日本シティ銀行変動金利1% 50年返済の場合 月々65,633円 |
||
| 地目 | 宅地 | 用途地域 | 指定なし |
|---|---|---|---|
| 建ぺい率 | 70% | 容積率 | 200% |
| 都市計画 | 非線引き区域 | 接道 | 北西側公道約6.02mに接面約11.91m 西側公道約6.62mに接面約13.02m |
| 構造・階数 | 木造・2階建て | 取引形態 | 売主 |
| 築年数 | 2026年4月新築予定 | 引き渡し | 相談 |
| 仲介手数料 | 不要 | 設備 | オール電化 |
| 備考 | 建築確認番号:第202517050号 現況:建築中 広告有効期限/2026年4月30日 不動産許可番号 国土交通大臣(1)第010009号 建設業許可番号 熊本県知事許可(特-3)第17117号 |
||
| お問合せ先 | アーバンスクエア TEL 096-284-1750 | ||

















