eventイベント情報

  • 平屋相談会あり
  • 限定
  • スペシャル
  • イチオシ
  • #熊本県玉名市
  • #完成見学会
  • #イベント
  • #相談会

開催場所:熊本県玉名市築地

開催期間:10月18日(土)~31日(金)の3週間限定開催

【売建フェア|玉名市中】総額が見える“ちょうどいい家づくり”相談会(土地+参考プラン)

無理して大きな家、必要ですか。
玉名市中の土地をベースに、参考プラン+概算総額+月々目安をその場でご提示する売建フェアです。
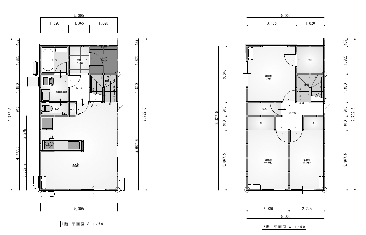
南向き・駐車2台が可能な区画に、16帖LDK/直線水回り/1坪バス/オール電化/24時間換気の“ちょうどいい”プランをご用意。間取りはご家族に合わせてその場で微調整できます。
「賃貸8万円台から住み替えたい」「総額2千万円台〜で検討したい」方におすすめです。

イベント概要

◆日程:10月18日(土)~31日(金)の3週間限定開催


◆時間:10:00~18:00


◆会場:熊本県玉名市築地


▼詳細マップ

 

 

イベントの予約はこちら

2025年10月14日(火)

開催時間 空席状況  
10:00

この時間で予約する

12:00

残り1組!

この時間で予約する

14:00

残り1組!

この時間で予約する

16:00

この時間で予約する

予約可
残りわずか
×
満席
こんな方にオススメ
  • 賃貸からの住み替えで総額と月々を先に知りたい

  • コンパクト×デザインで、維持費も抑えたい

  • 玉名駅徒歩圏(JR鹿児島本線「玉名」駅徒歩17分エリア)で探している

  • まずは土地から相談したい/建物は自分たち仕様で決めたい

イベントの見どころPoint
Point1総額“まるっと”公開

土地+建物(参考仕様)+付帯工事・申請費・外構の概算総額を、その場でお客様の条件に合わせてお作りします。

金利や借入年数・頭金の有無を入力して、月々返済のシミュレーションを即時表示。

あわせて、現在の賃貸家賃・光熱費と比較できる家計比較表をご提示し、「いまの生活費で無理なく持てるか」を具体的に判断できます。

不要なオプションは外し、優先度の高い仕様だけに絞るコスト最適化提案も実施します。

Point2暮らしやすい参考プラン

16帖のLDKに直線水回り(キッチン→洗面→浴室)を並べた“家事ラク動線”。

買い物帰りに最短で収納・調理ができ、1坪バスで入浴もゆったり。

パントリーや階段下、各室クローゼットなど“見せない収納”を計画し、リビングはいつもスッキリ。

南向き×採光計画により冬はあたたかく、夏は遮蔽で眩しさをコントロール。

2階は将来の家族構成に合わせて間仕切り可変、テレワークや趣味にも転用しやすいレイアウトです。

Point3その場でカスタム相談

在宅ワークカウンターやリビング収納の追加、外構(駐車2台・アプローチ・植栽)の見え方、キッチン・水回りグレードなどをその場で微調整

完成イメージの外観・内観パースと1F/2F平面図を見比べながら、サイズ・色・素材のバランスを確認できます。

設備はオール電化・24時間換気をベースに、食洗機や浴室暖房乾燥、物干し計画など暮らしに直結するオプションの効果と費用対効果も丁寧にご説明。

最終的に概算見積と修正後プランをお持ち帰りいただけます。

ご来場いただくメリット

 

 

デザイン性と暮らしやすさの両方獲得するためのお家づくりのポイントを実際にお家を見ながら体感できます。

 

イベントの予約はこちら

2025年10月14日(火)

開催時間 空席状況  
10:00

この時間で予約する

12:00

残り1組!

この時間で予約する

14:00

残り1組!

この時間で予約する

16:00

この時間で予約する

予約可
残りわずか
×
満席
アーバンホームの家づくり

More lifestyle.

家は「建てること」が
目的ではないと思う

もっと暮らしが楽しくなる。
もっと笑顔が溢れる。
もっと自分たちのライフスタイルが充実する。

キッチンの使い勝手やいつ見ても満足するデザイン、
リビングでゆったりとくつろげる時間まで、
暮らしはじめてから感じる心地よさをつくる事が大切。

そんな夢を一緒に実現して、人生をより
楽しんでもらいたい。
それがアーバンホームが考える家づくりです。

アーバンホームは、家づくりから資金計画はもとより、
それぞれにあった「ライフスタイル」を
ご提案する住宅会社です。

アーバンホームの信頼実績

PROVEN AND TRUSTED

  • 熊本県北 販売棟数 NO.1
  • 販売棟数 500棟以上
  • 紹介率 56%

REASONアーバンホームがお客様に愛される理由

Performance01

Performance

熊本県北(荒尾玉名地区)で安定した
成長、
販売棟数No.1の実績

2008年に福岡県大牟田市で事業を開始し年間契約20棟弱から始まった私達の家づくりは年々棟数を伸ばし続け、2015年には通算契約棟数300棟、2019年には140棟以上の契約を達成いたしました。その甲斐あって、熊本県北地域(荒尾玉名地区)で商圏販売棟数ナンバーワンという輝かしい称号をいただきました。同時に実店舗も熊本県荒尾から玉名〜福岡県柳川へ範囲拡大し2017年には熊本市内の平成へ、2018年には沖縄にもオフィスを構え、2020年には佐賀へ、そして2023年4月には熊本県八代へ出店いたしました。全てはご支持を頂いている地域の皆様のお陰でございます。これからもアーバンホームは地域密着しお客様に寄り添う事を大切に、地元・皆様のお役に立てるように精進してまいります。

Performance

Design&Planning02

Design&Planning

家づくりは、お客様とのセッション。
深く広くライフスタイルをお聞きします。

家を建てる前にお客様に理想の住宅イメージをお伺いする第1の工程「ヒアリング」。アーバンホームではそのヒアリングを広く深く行います。例えば家族構成や将来設計・希望価格帯をはじめ「趣味」「休日の過ごし方」「設置予定の家具」「好きな季節」「好きな本」「好きな音楽」…等、様々な質問をさせていただきます。「そんなことまで?」と思われるかもしれませんが、全てはその後の「ご提案」のためにあります。価格・性能・デザイン、全てにお客様のご希望を反映させている提案であることは大前提として、弊社ではお客様の理想を超える、驚きと感動のある提案をさせていただきます。

Design&Planning

Trust03

Trust

「51%」この数字は住宅会社を決める上で
アーバンホームをご紹介いただいた
ご紹介率です。

なぜこのような高い紹介率が出ているのか、理由は「施主様がご友人の方々に紹介したくなる家づくりだから」だと考えております。デザイン・価格・対応・性能、全てにおいてお客様の満足度を最高水準で満たさない限り「人に勧めたい」と思って頂くのは難しい事。ですのでこの紹介の割合の高さを私達は非常に有難く喜ばしいことだと感じており、新たなお客様にも最高のご満足を与えよう! という品質の安定化にも繋がっております。

Trust

Hi-Spec04

Hi-Spec

高耐震、高断熱、省令準耐火構造…
デザインだけではない、住性能への
こだわり。

皆様の「家を建てる基準」とは何でしょうか。スタッフの対応がいい、デザインが自分に合っている…など様々あるかと思いますが、その中で「性能が高い」というのは当たり前のようで一番大きな基準だと考えます。アーバンホームの住宅は「耐震等級3相当(自社基準)」、「硬質発泡ウレタン」の使用、「制震ダンパー」、「省令準耐火構造」が標準仕様です。デザインだけに留まらず中身の性能も充実しており、安心して家づくりをしていただけるようになっております。

Hi-Spec

Financial Planning05

Financial Planning

20代、30代の家づくりを叶えられる、
適確なFPと提案力。

弊社で家づくりをされるお客様は、20〜30代が高い割合になっております。その理由は、若く新しい世代の方にもご満足頂けるデザイン力、そしてご安心頂けるFP(ファイナンシャルプランニング・資金計画)のご提案をさせていただいているからだと考えています。

Financial Planning
イベントの予約はこちら

2025年10月14日(火)

開催時間 空席状況  
10:00

この時間で予約する

12:00

残り1組!

この時間で予約する

14:00

残り1組!

この時間で予約する

16:00

この時間で予約する

予約可
残りわずか
×
満席
WORKS施工事例

近日開催のイベント

SNSでも情報を発信中!

2008年に福岡県大牟田市で事業を開始し年間契約20棟弱から始まった私達の家づくりは年々棟数を伸ばし続け、2015年には通算契約棟数300棟、2019年には140棟以上の契約を達成いたしました。その甲斐あって、熊本県北地域(荒尾玉名地区)で商圏販売棟数ナンバーワンという輝かしい称号をいただきました。同時に実店舗も熊本県荒尾から玉名〜福岡県柳川へ範囲拡大し2017年には熊本市内の平成へ、2018年には沖縄にもオフィスを構え、2020年には佐賀へ出店いたしました。全てはご支持を頂いている地域の皆様のお陰でございます。これからもアーバンホームは地域密着しお客様に寄り添う事を大切に、地元・皆様のお役に立てるように精進してまいります。
主な建築エリア
【熊本県】熊本市・荒尾市・玉名市・玉名郡・山鹿市・菊池市・菊池郡・宇土市・宇城市・合志市・上益城郡・八代市・芦北町・八代郡氷川町
【福岡県】大川市・三潴郡・筑後市・柳川市・みやま市・大牟田市・久留米市
【佐賀県】佐賀市・鳥栖市・小城市・多久市・神埼市・三養基郡・武雄市